特 点
• 扭矩: 8Nm、16Nm
• 额定电压: AC/DC 24V和AC 230V
• 控制方式: 2点、3点开关型
订货代码

技术参数

特 点
• 扭矩: 8Nm、16Nm
• 额定电压: AC/DC 24V
• 控制方式: 0(2)…10V、0(4)…20mA模拟型
订货代码

技术参数

接线说明

辅助开关说明

辅助开关调节

S6061-XXDK旋转方向的设置

S6061-(8、16)AK控制信号及旋转方向的选择

旋转角度的限制

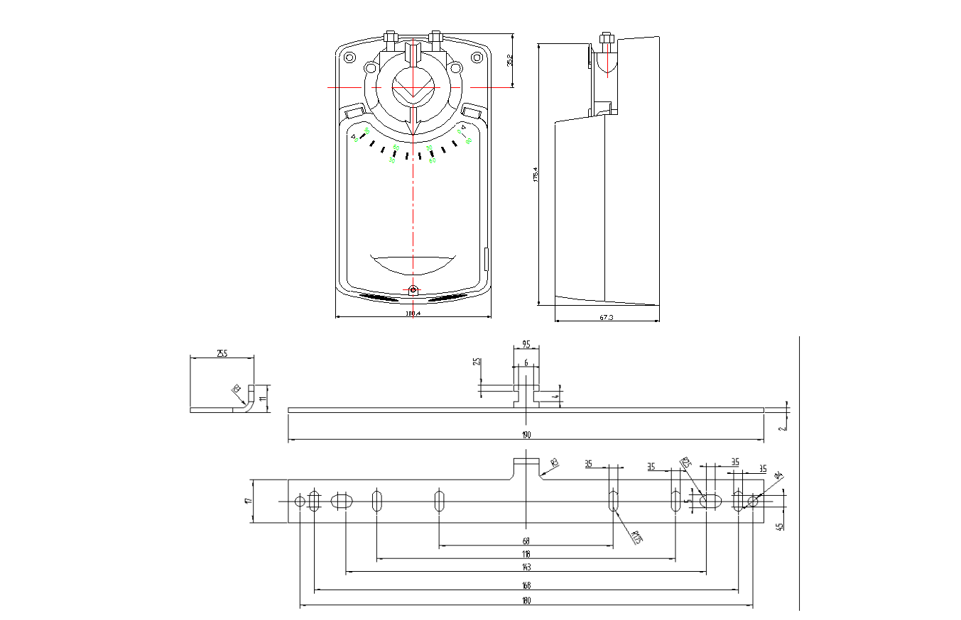
外形及安装尺寸 单位(mm)


• 扭矩: 8Nm、16Nm
• 额定电压: AC/DC 24V和AC 230V
• 控制方式: 2点、3点开关型


• 扭矩: 8Nm、16Nm
• 额定电压: AC/DC 24V
• 控制方式: 0(2)…10V、0(4)…20mA模拟型









